物件の概要を記載しているページです。 現在の募集状況やお問い合わせはこちら
サニーガーデン片江の物件情報
| 物件名 | サニーガーデン片江 | ||
|---|---|---|---|
| 所在地 | 福岡県福岡市城南区 片江1丁目2-26 | ||
| 交通 |
福岡市地下鉄七隈線 七隈駅 徒歩25分 福岡市地下鉄七隈線 福大前駅 徒歩27分 福岡市地下鉄七隈線 金山(福岡)駅 徒歩31分 |
||
| 種別 | アパート | 構造 | 木造 |
| 築年月 | 2024年10月(築1年) | 階数 | 2階建 |
| 総戸数 | – | ||
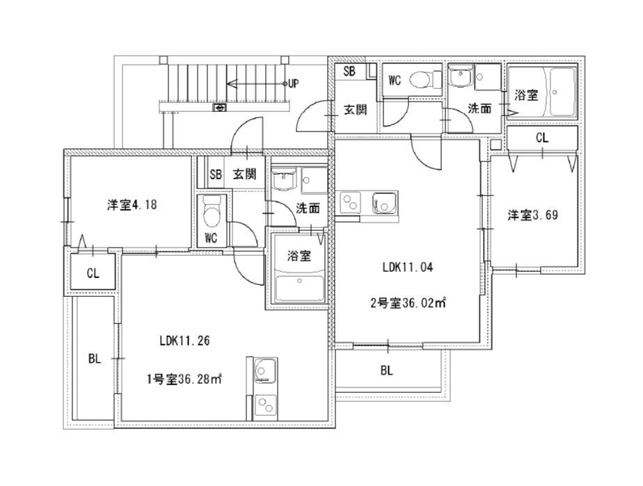
| 面積例 | 36.02㎡ | 間取り | 1LDK |
| 備考 | – | ||
| 周辺施設 | |||
※間取りの「S」はサービスルーム(納戸)です。
サニーガーデン片江の賃貸物件募集情報
| 間取り | 階 | 賃料・管理費 | 敷金・礼金 | 間取り・面積 | |
|---|---|---|---|---|---|
|
2階 | サニーガーデン片江 202 6.4万円 / (管理費:4,000円) / 4,000円 | 敷金 0ヶ月 / 礼金 1ヶ月 |
1LDK / 36.02㎡
/ 2階
|
詳細を見る |

